Používame cookies

Používaním týchto stránok súhlasíte s používaním cookies, ktoré nám pomáhajú zabezpečiť lepšie služby. Viac info

 

2-izb. byt - Ovručská ul. (po rekonštrukcii)

Ulica: Ovručská
Obec: Bratislava-Nové Mesto
Okres: Bratislava III
Kraj: Bratislavský kraj
Druh: Byty
Typ: Predaj
Typ bytu: 2-izbový byt
250 000 €

Popis nehnuteľnosti

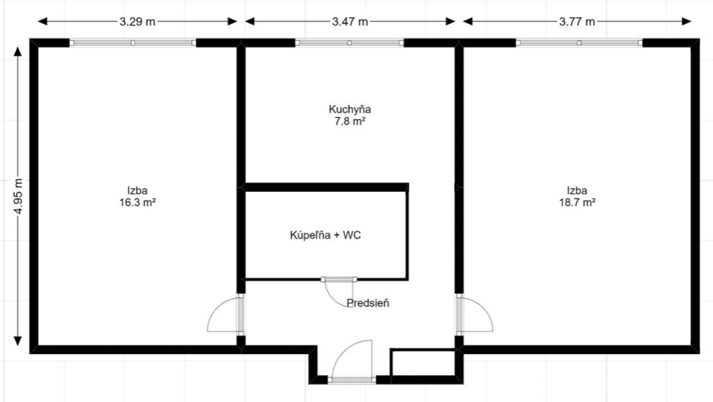
Ponúkame na predaj 2-izb. byt neďaleko Račianskeho mýta, na Ovručskej ul.. Lokalita poskytuje kompletnú občiansku vybavenosť a dobrý prístup do centra Bratislavy.
Dispozícia: Byt pozostáva z 2 samostatných izieb, kuchyne, kúpeľne (WC, práčka, umývadlo, sprchovací kút), predsiene a pivnice. Celková výmera je 56 m2. Nachádza sa na 2.,poschodí zo 6. Je orientovaný na JV.
Stav bytu: byt je po kompletnej rekonštrukcii.
- plastové okná so žalúziami
- bezpečnostné vstupné dvere
- vymenené interiérové dvere + zárubne
- laminátová plávajúca podlaha
- kúpeľňa a WC po rek.
- kuchynská linka vrátane spotrebičov (el. rúra, plyn. varná doska, chladnička s mrazničkou, umývačka riadu, digestor, mikrovlnná rúra),
 - vymenené rozvody el. aj vody.
Stav domu: Jedná sa o tehlový dom, ktorý prešiel rekonštrukciou (nové vstupné brány, nová fasáda, výťah, atď.).
Kontakt: 0907 547856.

Vlastnosti

Status:
aktívne
Vlastníctvo:
osobné
Úžitková plocha:
56 m2
Stav:
úplne prerobený
Počet izieb:
2
Typ budovy:
tehla
Pivnica:
áno
Verejné vonkajšie parkovanie:
áno
Výťah:
áno
Počet poschodí od prízemia vyššie:
6
Poschodie:
2
Celková plocha:
56 m2
Pivnica plocha:
2 m2
Počet pivníc:
1
Orientácia:
juhovýchod
Inžinierske siete:
áno
Voda:
áno
Elektrika:
áno
Plyn:
áno
Kanalizácia:
áno
Vykurovanie - centrálne:
áno
Internet:
áno
Káblová TV:
áno
Optická sieť:
áno

Informatívna úverová kalkulačka

Pozrieť na mape

Maklér

Ing. Marian Polák

Ing. Marian Polák

konateľ

  • Slovensky
  • English

Radi Vám poradíme

Podobné nehnuteľnosti