Používame cookies

Používaním týchto stránok súhlasíte s používaním cookies, ktoré nám pomáhajú zabezpečiť lepšie služby. Viac info

 

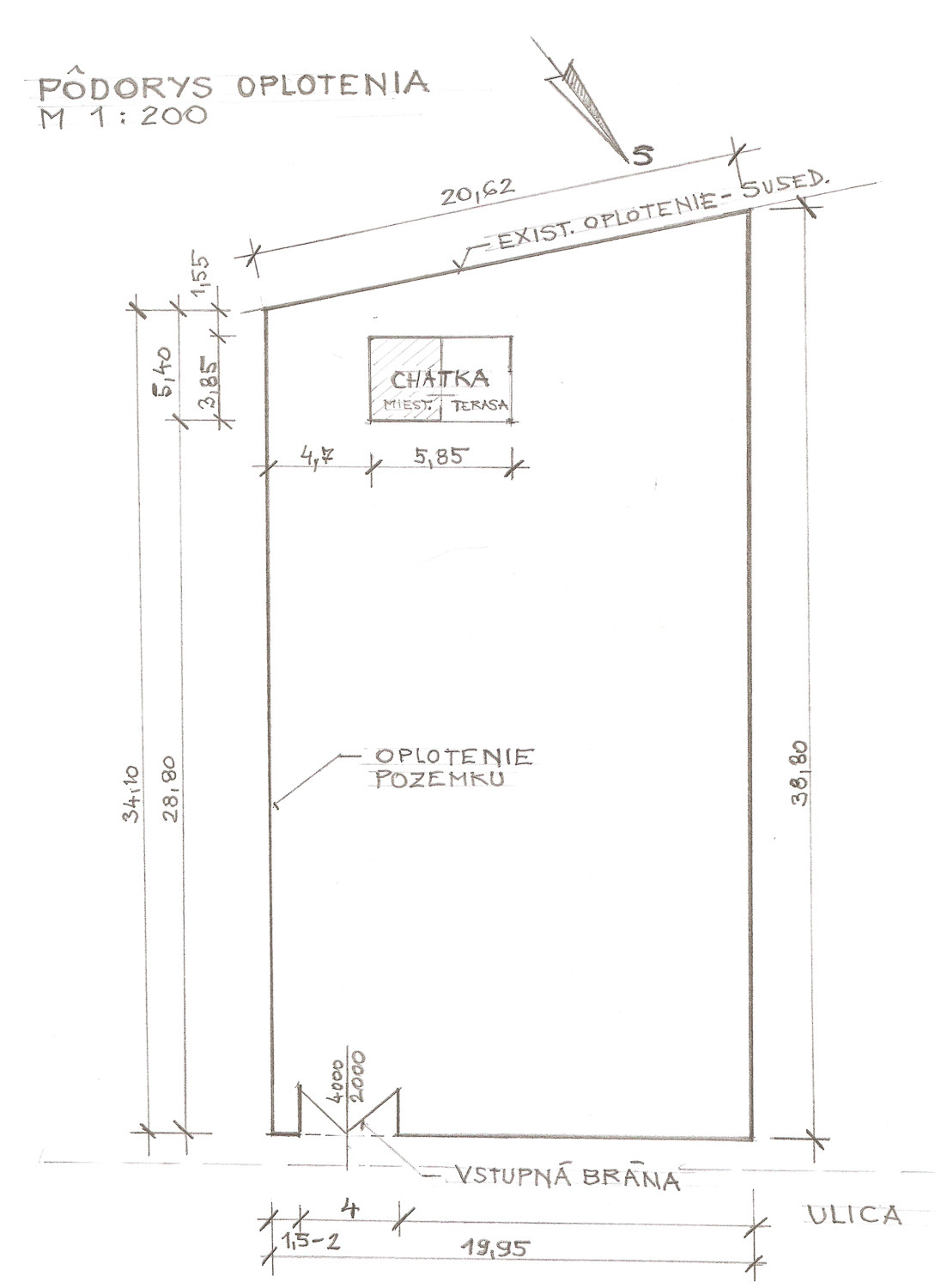
St. pozemok pre rodinný dom - Hubice (737 m2)

Obec: Hubice
Okres: Dunajská Streda
Kraj: Trnavský kraj
Druh: Pozemky
Typ: Predaj
Typ pozemku: Pozemok pre rodinné domy
222 €/m2

Popis nehnuteľnosti

Ponúkame na predaj pekný st. pozemok v zastavanej časti obce Hubice. Obec je vzdialená cca 15 km od začiatku Bratislavy (cca 15 min. autom).
Výmery: celková výmera pozemku je 737 m2, šírka pozemku 20 m.
Inžinierske siete: na pozemku je el. a vlastná studňa s čerpadlom - ostatné IS (el., voda, kanalizácia aj plyn sú v ceste pred pozemkom) 
Popis: Pozemok je oplotený, nachádza sa na ňom nová drevená chatka (1 miestnosť + terasa), plechová garáž (5m x 3m). Okrem toho sú pri plote vysadené tuje a pred chatkou niekoľko ovocných stromov. 
UPI: pozemok je vhodný na výstavbu RD. Koeficient zastavanosti pre samostatný RD je 0,4, pre radový resp. átriový dom 0,6. Max podlažnosť 2 nadzemné podlažia.
Kontakt: 0907 547856.

Vlastnosti

Status:
aktívne
Vlastníctvo:
osobné
Plocha pozemku:
737 m2
Typ zeme:
rovina
Šírka pozemku:
20 m
Dĺžka pozemku:
34 m
Celková plocha:
737 m2
Inžinierske siete:
áno
Voda:
áno
Elektrika:
áno
Plyn:
áno
Kanalizácia:
áno
Voda - na pozemku:
áno
Voda - na pozemku - studňa:
áno
Elektrika - na pozemku:
áno
Plyn - blízko pozemku:
áno
Kanalizácia - blízko pozemku - kanalizácia:
áno

Pozrieť na mape

Maklér

Ing. Marian Polák

Ing. Marian Polák

konateľ

  • Slovensky
  • English

Radi Vám poradíme

Podobné nehnuteľnosti