Používame cookies

Používaním týchto stránok súhlasíte s používaním cookies, ktoré nám pomáhajú zabezpečiť lepšie služby. Viac info

 

Popis nehnuteľnosti

Ponúkame na predaj veľký RD v obci Limbach (cca 15 km od Bratislavy), na Gaštanovej ul.. Dom je 3-podlažný - 2 nadzemné podlažia, 1 podzemné.
Lokalita: nachádza sa v krásnej lokalite - na úpätí Malých Karpát v zástavbe novších RD.  Štvrť je zabývaná - nehrozí stavebný ruch.
Výmery: celková plocha pozemku 582 m2, úžitková plocha domu je cca 300 m2.
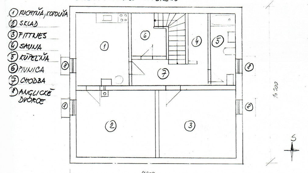
Dispozícia:
Suterén (93 m2): 3 veľké miestnosti (jedna z nich je technická miestnosť s kotlom a bojlerom), kúpeľňa s WC, 2 menšie sklady.
Prízemie (114 m2): vstupná hala, veľká obývačka s jedálňou (50 m2), kuchyňa, pracovňa, kúpeľňa s WC, garáž.
Poschodie (93 m2): 3 veľké samostatné izby, chodba, kúpeľňa (rohová vaňa, 2x umývadlo, sprch. kút), WC (bidet, umývadlo, wc), 2x balkón. 
Stav domu: dom bol skolaudovaný v roku 2005.
- postavený z tehly + zateplenie 
- strešná krytina Tondach
- podlahy: dlažba + drevené parkety
- plastové okná (2-sklo) + vonkajšie hliníkové rolety
- kúrenie: plynový kotol + tuhé palivo (v obývačke sa nachádza krb), v izbách su radiátory
- teplá voda - el. bojler
- kuchynská linka so zabudovanými spotrebičmi (chladnička/mraznička, umývačka riadu, el. rúra, plyn. varná doska, digestor)
- úložné miesto na povale
- alarm 
- garáž (19,5 m2) pre 1 auto (ostatné autá môžu parkovať pred domom)
Pozemok:
- pozemok je zo všetkých strán oplotený
- od susedov odizolovaný vyrastenými drevinami
- rovinatý
- v zadnej časti pozemku terasa s altánkom
Inžinierske siete: RD je napojený na všetky IS - el., obecná voda, kanalizácia, plyn.
Kontakt: 0907 547856.

Vlastnosti

Status:
aktívne
Vlastníctvo:
osobné
Plocha pozemku:
582 m2
Typ zeme:
rovina
Teritórium:
Intravilán
Úžitková plocha:
300 m2
Zastavaná plocha:
143 m2
Stav:
pôvodný stav
Počet izieb:
8
Typ budovy:
tehla
Typ výbavy:
čiastočne vybavený
Balkón:
áno
Terasa:
áno
Garáž:
áno
Pivnica:
áno
Verejné vonkajšie parkovanie:
áno
Dielňa:
áno
Rok kolaudácie:
2005
Počet poschodí od prízemia vyššie:
2
Celková plocha:
300 m2
Počet balkónov:
2
Terasa plocha:
20 m2
Počet terás:
1
Počet garáží:
1
Plocha garáže:
18 m2
Počet vonkajších parkovacích miest:
1
Inžinierske siete:
áno
Voda:
áno
Elektrika:
áno
Plyn:
áno
Kanalizácia:
áno
Voda - na pozemku - vodný zdroj:
áno
Elektrika - na pozemku - 230 V:
áno
Elektrika - na pozemku - 380 V:
áno
Plyn - na pozemku:
áno
Kanalizácia - na pozemku - kanalizácia:
áno
Vykurovanie - centrálne:
áno

Informatívna úverová kalkulačka

Pozrieť na mape

Maklér

Ing. Marian Polák

Ing. Marian Polák

konateľ

  • Slovensky
  • English

Radi Vám poradíme

Podobné nehnuteľnosti