2-izb. byt - Ovručská ul. (po rekonštrukcii)
                
                    
                                                                            
                                | Ulica: | Ovručská | 
                                                                            
                            
                                | Obec: | Bratislava-Nové Mesto | 
                                                    
                            
                                | Okres: | Bratislava III | 
                                                    
                            
                                | Kraj: | Bratislavský kraj | 
                                                                            
                                | Druh: | Byty | 
                                            
                                | Typ: | Predaj | 
                                            
                                | Typ bytu: | 2-izbový byt | 
                                    	
                
                                                        
                    
                 
                
             
            
         
                
                
                
            Ponúkame na predaj 2-izb. byt neďaleko Račianskeho mýta, na Ovručskej ul.. Lokalita poskytuje kompletnú občiansku vybavenosť a dobrý prístup do centra Bratislavy.
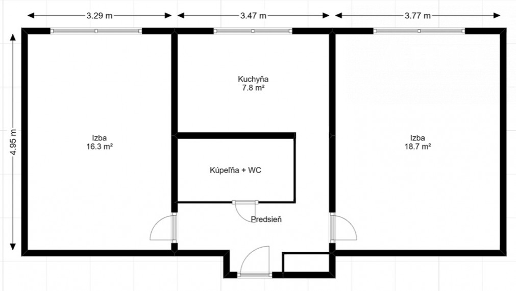
Dispozícia: Byt pozostáva z 2 samostatných izieb, kuchyne, kúpeľne (WC, práčka, umývadlo, sprchovací kút), predsiene a pivnice. Celková výmera je 56 m2. Nachádza sa na 2.,poschodí zo 6. Je orientovaný na JV.
Stav bytu: byt je po kompletnej rekonštrukcii.
- plastové okná so žalúziami
- bezpečnostné vstupné dvere
- vymenené interiérové dvere + zárubne
- laminátová plávajúca podlaha
- kúpeľňa a WC po rek.
- kuchynská linka vrátane spotrebičov (el. rúra, plyn. varná doska, chladnička s mrazničkou, umývačka riadu, digestor, mikrovlnná rúra),
 - vymenené rozvody el. aj vody.
Stav domu: Jedná sa o tehlový dom, ktorý prešiel rekonštrukciou (nové vstupné brány, nová fasáda, výťah, atď.).
Kontakt: 0907 547856.                
             
            
            
            
                Vlastnosti
                
                    
                                                
                                                            
                                        
                                        
                                        
                                        
                                        
                                        
                                        
                                    Verejné vonkajšie parkovanie:
                                    áno
                                 
                                 
                        
                                                            
                                        
                                    Počet poschodí od prízemia vyššie:
                                    6
                                 
                                        
                                        
                                        
                                        
                                        
                                        
                                 
                        
                                                            
                                        
                                        
                                        
                                        
                                    Vykurovanie - centrálne:
                                    áno
                                 
                                        
                                        
                                        
                                 
                     
                 
             
            
                                
                    Informatívna úverová kalkulačka
                    
                 
            
                                                        
                    
                        
                            Maklér
                            
                                
                                
                                    Ing. Marian Polák
 konateľ