Používame cookies

Používaním týchto stránok súhlasíte s používaním cookies, ktoré nám pomáhajú zabezpečiť lepšie služby. Viac info

 

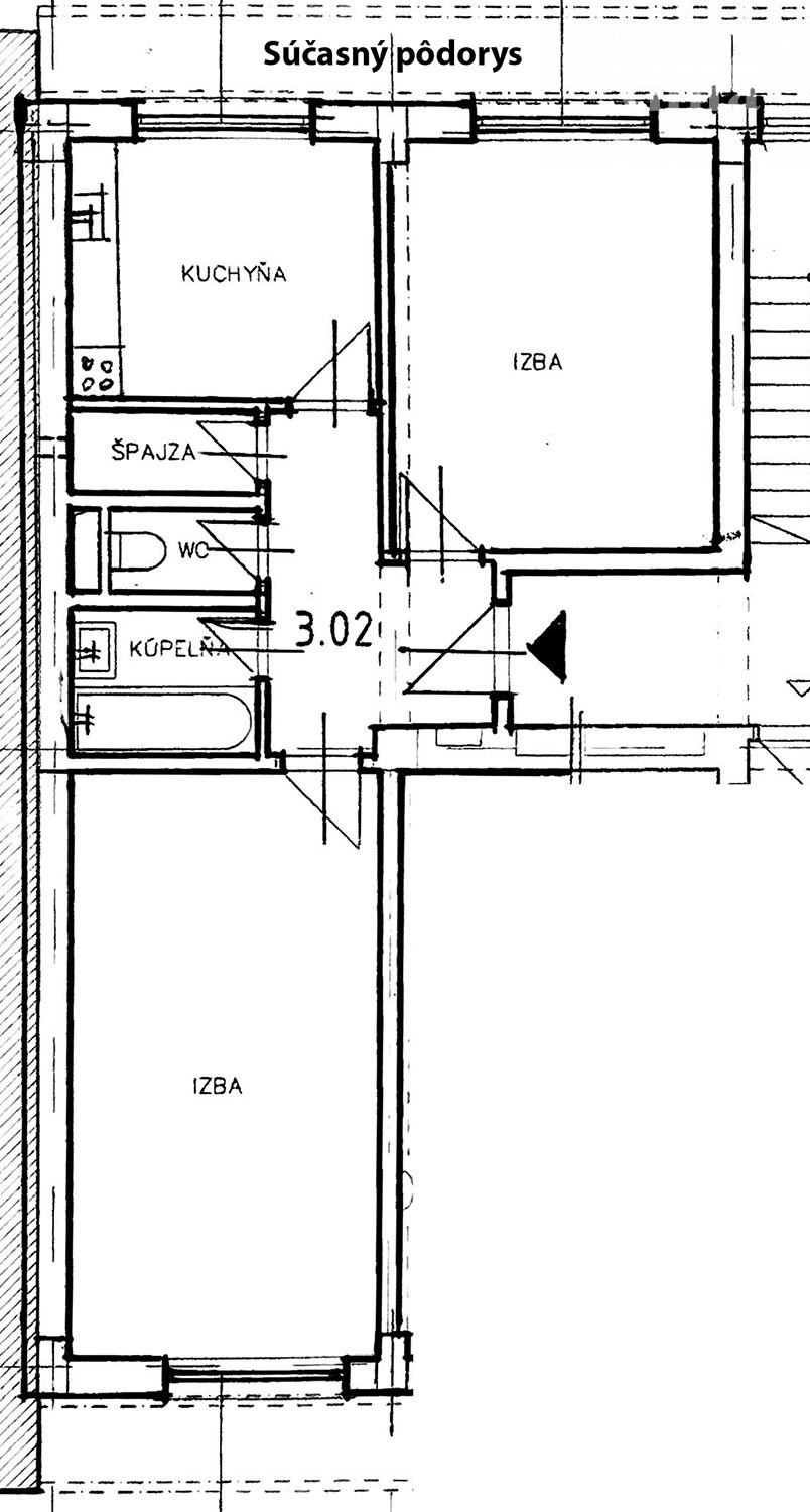
2-izb. byt s dobrou dispozíciou - Krížna ul.

Ulica: Krížna
Obec: Bratislava-Staré Mesto
Okres: Bratislava I
Kraj: Bratislavský kraj
Druh: Byty
Typ: Predaj
Typ bytu: 2-izbový byt
259 000 €

Popis nehnuteľnosti

Ponúkame na predaj pekný 2-izb. byt s dobrou dispozíciou v centre Bratislavy, na Krížnej ul.. Bytový dom sa nachádza v blízkosti Amerického námestia, resp. kostola Blumentál. Ulica je revitalizovaná, s kompletnou občianskou vybavenosťou.
Dispozícia: byt pozostáva z 2 samostatných izieb, kuchyne, predsiene, WC, kúpeľne, špajzy a murovanej pivnice. Celková výmera je 56 m2. Nachádza sa na 4. posch. zo 7 a je orientovaný na dve svetové strany JV - SZ.
Popis: Byt je slnečný a na danú lokalitu relatívne tichý (spálňa a kuchyňa orientované do vnútrobloku). Pôsobí priestranne aj vďaka vyšším stropom (2,75 m). Malou zmenou dispozície je možnosť prerobiť ho na 3-izbový. Takisto sa dá zväčšiť kúpeľňa ak nevadí spojenie s WC.
Stav bytu:
- plastové okná
- bezpečnostné vstupné dvere
- klimatizácia v spálni
- v predsieni a v kuchyni nová dlažba
- v izbách pôvodné drevené parkety
- WC po rekonštrukcii
- zvyšok bytu pôvodný stav
Stav domu:
- tehlový dom z roku 1957
- renovovaný výťah (kabína aj strojovňa)
- obnovená fasáda zo strany ulice
- vstupné brány na mag. čip
- nová strecha
- plastové okná na schodisku
Kontakt: 0907 547856

Vlastnosti

Status:
aktívne
Vlastníctvo:
osobné
Úžitková plocha:
56 m2
Stav:
čiastočne prerobený
Počet izieb:
2
Typ budovy:
tehla
Typ výbavy:
nevybavený
Pivnica:
áno
Verejné vonkajšie parkovanie:
áno
Špajza:
áno
Výťah:
áno
Rok výstavby:
1957
Počet poschodí od prízemia vyššie:
7
Poschodie:
4
Celková plocha:
56 m2
Pivnica plocha:
3.6 m2
Počet pivníc:
1
Orientácia:
juhovýchod
Inžinierske siete:
áno
Voda:
áno
Elektrika:
áno
Plyn:
áno
Kanalizácia:
áno
Vykurovanie - centrálne:
áno
Internet:
áno
Káblová TV:
áno
Optická sieť:
áno

Informatívna úverová kalkulačka

Pozrieť na mape

Maklér

Ing. Marian Polák

Ing. Marian Polák

konateľ

  • Slovensky
  • English

Radi Vám poradíme

Podobné nehnuteľnosti